MOLFETTA, Via Carlo Alberto

€ 62.000,00

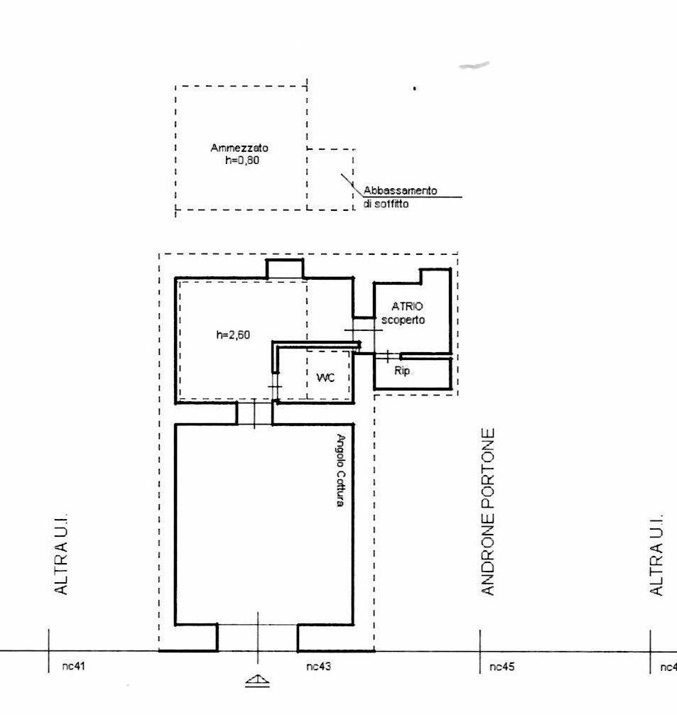
Appartamento in vendita! Investimento ideale per chi cerca un locale uso abitazione nel centro ponente. Questo appartamento al piano terra è stato completamente ristrutturato nel 2022. Offre un'ampia cucina-soggiorno, una camera da letto e una camera da letto soppalcata, un bagno e un atrio. Inoltre, dispone di una comoda lavanderia esterna. La pavimentazione in grès porcellanato conferisce un tocco di eleganza, mentre il sistema di riscaldamento autonomo assicura il massimo comfort. Gli infissi con doppio vetro e i cancelletti di protezione garantiscono sicurezza e tranquillità. Situato nei pressi di supermercati e servizi, questo appartamento al piano terra è perfetto per chi cerca comodità e praticità. Non perdere l'opportunità di acquistare questo immobile senza ascensore. Contattaci ora per maggiori informazioni!

 

Dati generali

Categoria
Locale
Tipologia
Abitazione
MQ Commerciali
50
MQ Coperti
45
Piano
Piano terra - Livello strada
Ascensore
SI
Vani
2
Condizioni interne
Ottimo stato

 

Impianti

Riscaldamento
Autonomo
Climatizzazione
SI

 

Sei interessato a visionare questo immobile, o desideri semplicemente ricevere maggiori informazioni? Contatta il Consulente Immobiliare su WhatsApp.

 

Richiedi informazioni

ID: 2188

Agente

Azzollini Mirella

Nome

Cognome

© 2025 - GRUPPO F.A.M.M. IMMOBILIARE | Via de Luca, 18 - 70056 Molfetta BA - tel./fax 080 3355897 - mail info@gruppofammimmobiliare.it - P.IVA 06738190724